517 King St, Charleston, SC 29403
Toggle Navigation
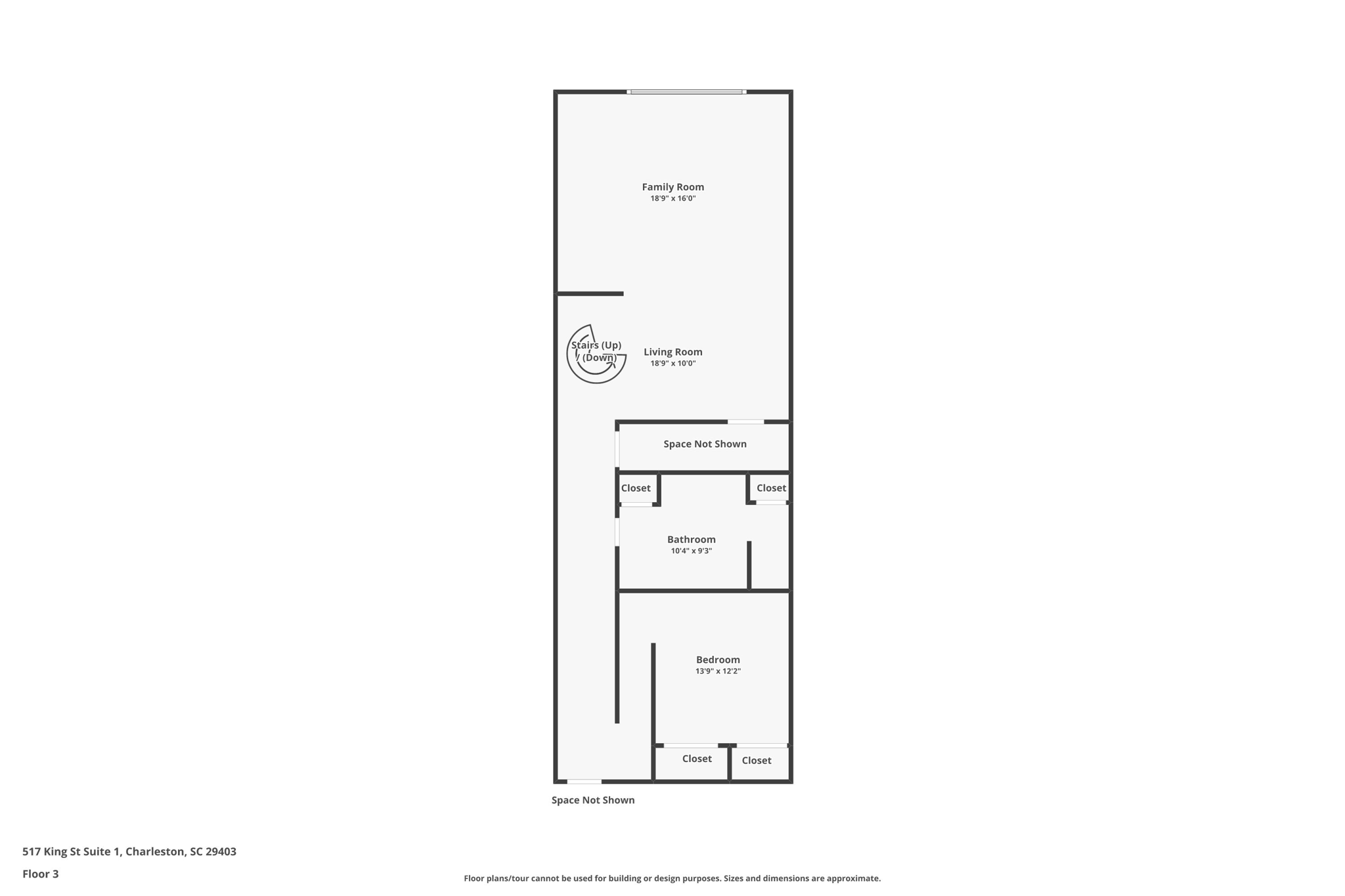
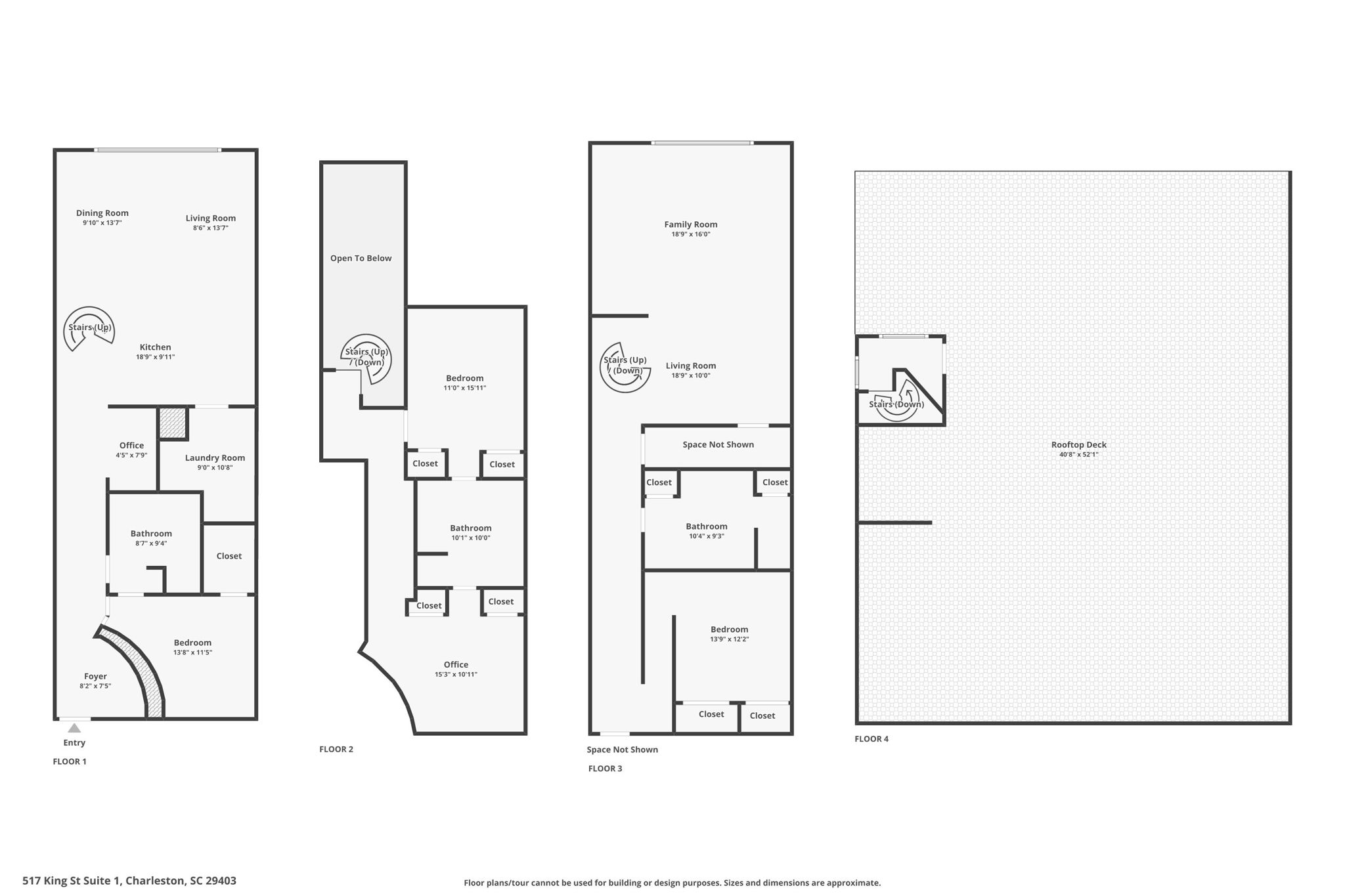
Floor Plans
3D Tour
Map
517 King St
Charleston, SC 29403
Scroll to Content
Floor Plans
Slideshow
Photo Grid
Hide
Previous
Next
3D Tour